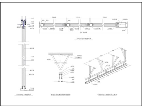
● 65型活动隔断四周全部采用铝合金边框,标号为6063-T6,可根据客户要求采用氧化,电泳等加工方式。隔断厚度为65mm。
● 65型活动隔断属于轻型隔断,自身重量轻,操作方便灵活,每件门板可单个吊轮悬挂滑动,门板可360°旋转,或两个吊轮悬挂可全方位滑动转弯并可推至任何地方。滑动稳定顺畅使空间变换展现多样化。
● 适用高度2m-4m,轨道****承重为250kg/m,屏风隔音系数为28-40db。
● 广泛应用于酒店、宾馆、中型会层、多功能会议厅等。
(配置65型常规多向路轨或直行单向路轨及滑轮)
隔断厚度(mm):65 隔断高度(mm):≤4000
隔断宽度(mm):700~1230 隔音系数(db):28-40
防火系数(h): 1.5 小时 路轨载荷(KG/M²):250
隔板重量(KG/M²):30-40 顶底伸缩空间(mm):25
隔音材质: 40分贝以下:防火隔音棉80-120KG/M³; 40分贝及以上:双面钢板1.2mm—1.5mm,防火隔音棉100-150KG/M³
基层面板: 采用9mm厚的中纤板或玻镁板,彩钢板、三聚氰胺板;
隔墙外观: 路轨及外框均采用6063-T6高硬度白色静电粉末喷涂
路轨及滑轮配置: 配置65型常规多向路轨或直行单向路轨及滑轮

产品参数:




当前位置:



