产品简介:
● 85型活动隔断四周全部采用铝合金边框,标号为6063-T6,可根据客户要求采用氧化,电泳等加工方式。隔断厚度为85mm。
● 85型活动隔断属于性价比价好的隔断,重量适中操作方便灵活,每件门板可单个吊轮悬挂滑动,门板可360°旋转,或两个吊轮悬挂可全方位滑动转弯并可推至任何地方。滑动稳定顺畅使空间变换展现多样化。
● 适用高度3m-6.8m,轨道****承重为450kg/m,屏风隔音系数为30-45db。
● 广泛应用于******酒店、豪华包厢、多功能宴会厅、会展中心等。
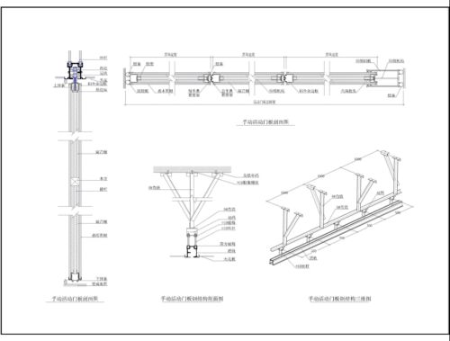
(配置80型常规多向路轨或直行单向路轨及滑轮)
隔断厚度(mm):85 隔断高度(mm):≤5000
隔断宽度(mm):700~1230 隔音系数(db):30-40db
防火系数(h): 1.5 小时 路轨载荷(KG/M²):500
隔板重量(KG/M²):30-50 顶底伸缩空间(mm):25
隔音材质: 47分贝以下:防火隔音棉80-120KG/M³; 47分贝及以上:双面钢板1.2mm—1.5mm,防火隔音棉100-150KG/M³
基层面板: 采用12mm厚的中纤板或玻镁板,彩钢板、三聚氰胺板、防火石膏板;
隔墙外观: 路轨及外框均采用6063-T6高硬度白色静电粉末喷涂
路轨及滑轮配置: 配置85型常规多向路轨或直行单向路轨及滑轮

产品参数:





当前位置:



