产品简介:
● 超高型活动隔断四周全部采用铝合金边框,标号为6063-T6,可根据客户要求采用氧化,电泳等加工方式。隔断厚度为125mm。
● 100型活动隔断采用重型路轨,车型滚动吊轮滑动次数可达10万次,拥有隔断行业********技术。
● 适用高度8m-17m,轨道****承重为1250kg/m,屏风隔音系数为47-60db。
● 广泛应用于机场、大型展示厅、精密加工厂等场所。
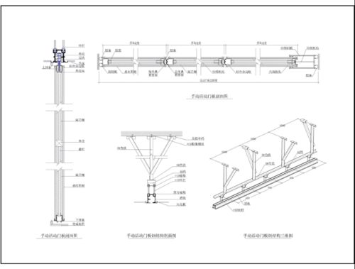
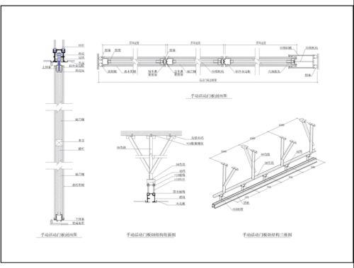
(配置100型常规多向路轨或直行单向路轨及滑轮)
隔断厚度(mm):125 隔断高度(mm):≥6000
隔断宽度(mm):700~1230 隔音系数(db):47-60db
防火系数(h): 1.5 小时 路轨载荷(KG/M):1250
隔板重量(KG/M²):63-70 顶底伸缩空间(mm):40
隔音材质: 60分贝以下: 防火隔音棉80-120KG/M³; 60分贝及以上:双面钢板1.2mm—1.5mm,防火隔音棉100-150KG/M³
基层面板: 采用20mm厚的中纤板或玻镁板,彩钢板、三聚氰胺板、防火石膏板;
隔墙外观: 路轨及外框均采用6063-T6高硬度白色静电粉末喷涂
路轨及滑轮配置: 配置125型常规多向路轨或直行单向路轨及滑轮

产品参数:






当前位置:




